W dniu 05 listopada br. w Sejmie RP odbyło się posiedzenie dotyczące rozwoju budownictwa społecznego i komunalnego, zorganizowane przez Parlamentarne Zespoły ds. Wspierania Rozwoju Społecznego Budownictwa Mieszkaniowego oraz ds. Rozwiązywania Problemów Polski „Powiatowo-Gminnej”.
W wydarzeniu uczestniczyli przedstawiciele administracji rządowej, #BGK, samorządów oraz TBS-ów z Mazowsza. Nasze miasto reprezentowali Hubert Betlejewski Burmistrz Ostrowi Mazowieckiej oraz Prezes Towarzystwa Budownictwa Społecznego w Ostrowi Mazowieckiej Mariusz Kwiatkowski.
Podczas spotkania omówiono m.in. dostępne fundusze i programy wsparcia dla budownictwa społecznego i komunalnego oraz potrzeby samorządów w zakresie rozwoju mieszkalnictwa.
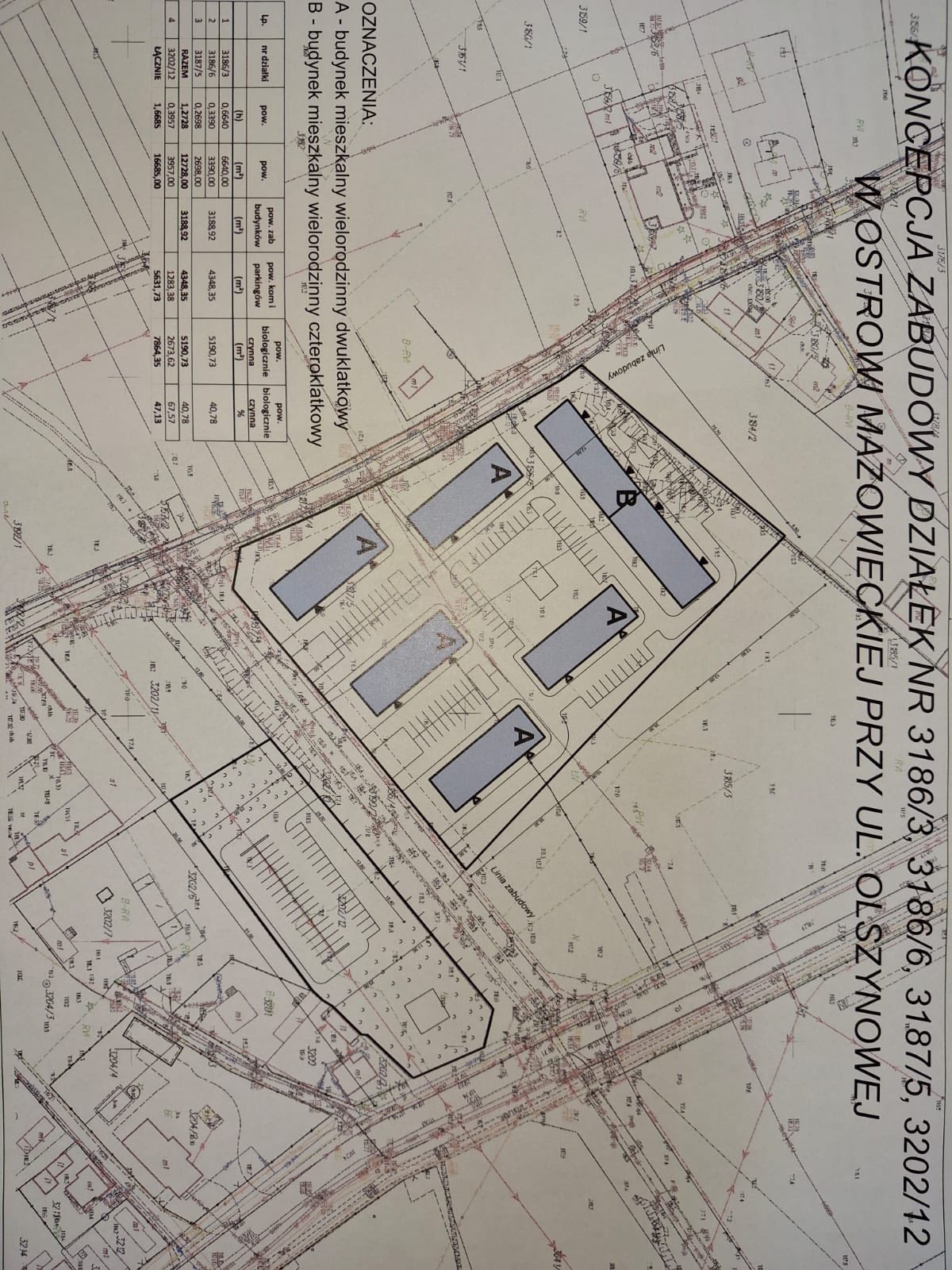
Informujemy także, że Towarzystwo Budownictwa Społecznego w Ostrowi Mazowieckiej wystąpiło do Urzędu Miasta z wnioskiem o ustalenie lokalizacji inwestycji celu publicznego. Rozpoczynają się przygotowania dokumentacji! Planowana jest budowa osiedla budynków wielorodzinnych przy ul. Olszynowej – tanie mieszkania na wynajem dla osób, które nie mogą uzyskać kredytu na zakup własnego lokum.
Dziękujemy za zaproszenie oraz możliwość udziału w merytorycznej debacie. Współpraca i wymiana doświadczeń to klucz do skutecznego rozwoju polityki mieszkaniowej.
